
Upyard
Brand Creative Retail
Thesis Case Study
UPYARD is an experimental field combines exhibits, lounges and shops, with the goal of introducing a futuristic retail system to experience brands deeply. Through bringing the distant world into cities, creating seasonal scenes, combining physical and virtual experiences seamlessly. UPYARD helps brands create unexpected journey to share the brand concept and lifestyle with participators.
Brand Creative Retail
Thesis Case Study
UPYARD is an experimental field combines exhibits, lounges and shops, with the goal of introducing a futuristic retail system to experience brands deeply. Through bringing the distant world into cities, creating seasonal scenes, combining physical and virtual experiences seamlessly. UPYARD helps brands create unexpected journey to share the brand concept and lifestyle with participators.







︎Material Strategy



Entry Hallway︎︎︎


Entrance︎︎︎
Virtual Gallery︎︎︎


FEATURED BRAND 01: SNOW PEAK



︎Brand Story


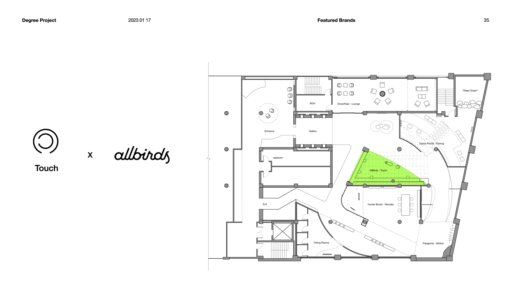
FEATURED BRAND 02: ALLBIRDS



︎Brand Story


FEATURED BRAND 03: DAWAI PIER39




︎Brand Story

FEATURED BRAND 04: PATAGONIA


︎︎︎Translucent LED Screens

Sensorial Wall designed for testing gear
Material: Themo-chromic Paint
Material: Themo-chromic Paint
︎Brand Story

FEATURED BRAND 05: HUNTER BOOT



︎Brand Story

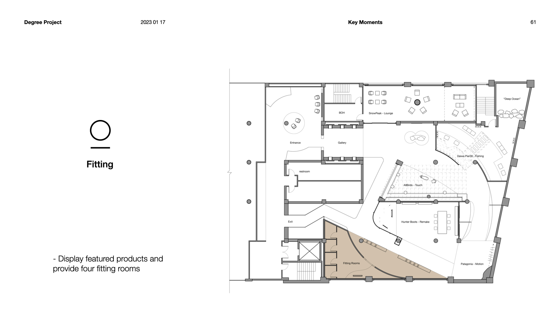
Fitting Room︎︎︎


Exit︎︎︎